DOLD AG Wallisellen

2023

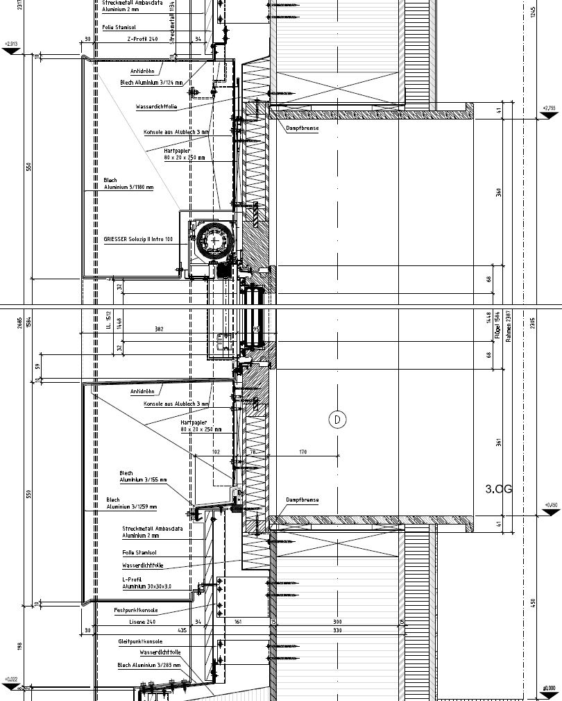
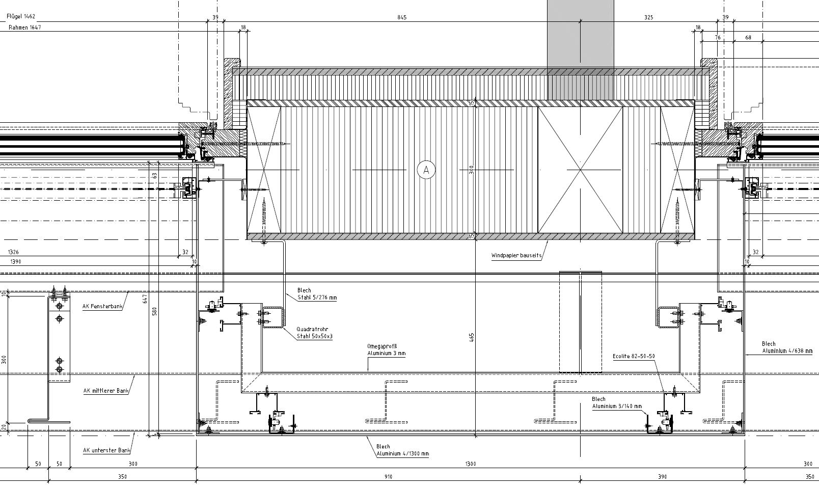
Aufstockung und neue Fassade am bestehenden Betriebsgebäude

Bauherr

Architekt

Leistungen FMTEC

Dold AG Wallisellen

Stadler Architekten ETH, Zürich

Projektierung, Ausschreibungsplanung

Fassade, Fenster, Sonnenschutz


																	

Comments are closed.