2020 bis 2023
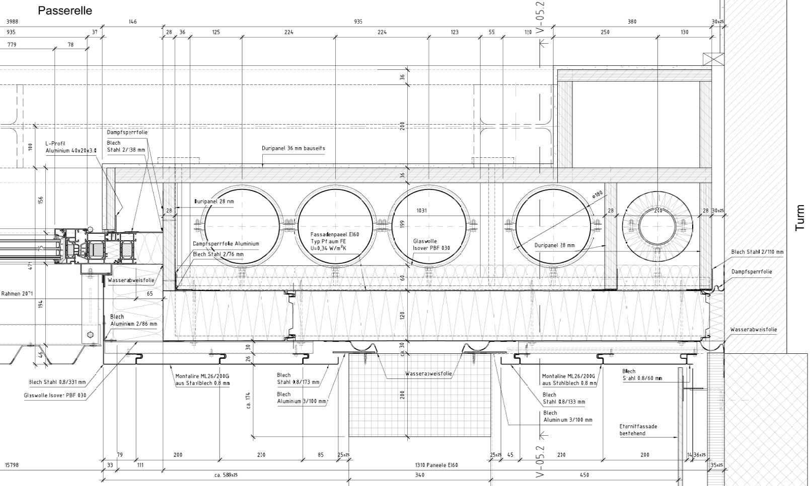
Verbindung über zehn Geschosse vom neuen Bettenhaus zum Turm Hauptgebäude
Bauherr
Architekt
Leistungen FMTEC
Stadt Zürich, Amt für Hochbauten
Hemmi Fayet Architekten AG, Zürich
Projektierung, Ausschreibung, Fachbauleitung
Fassade, Fenster, Türen

